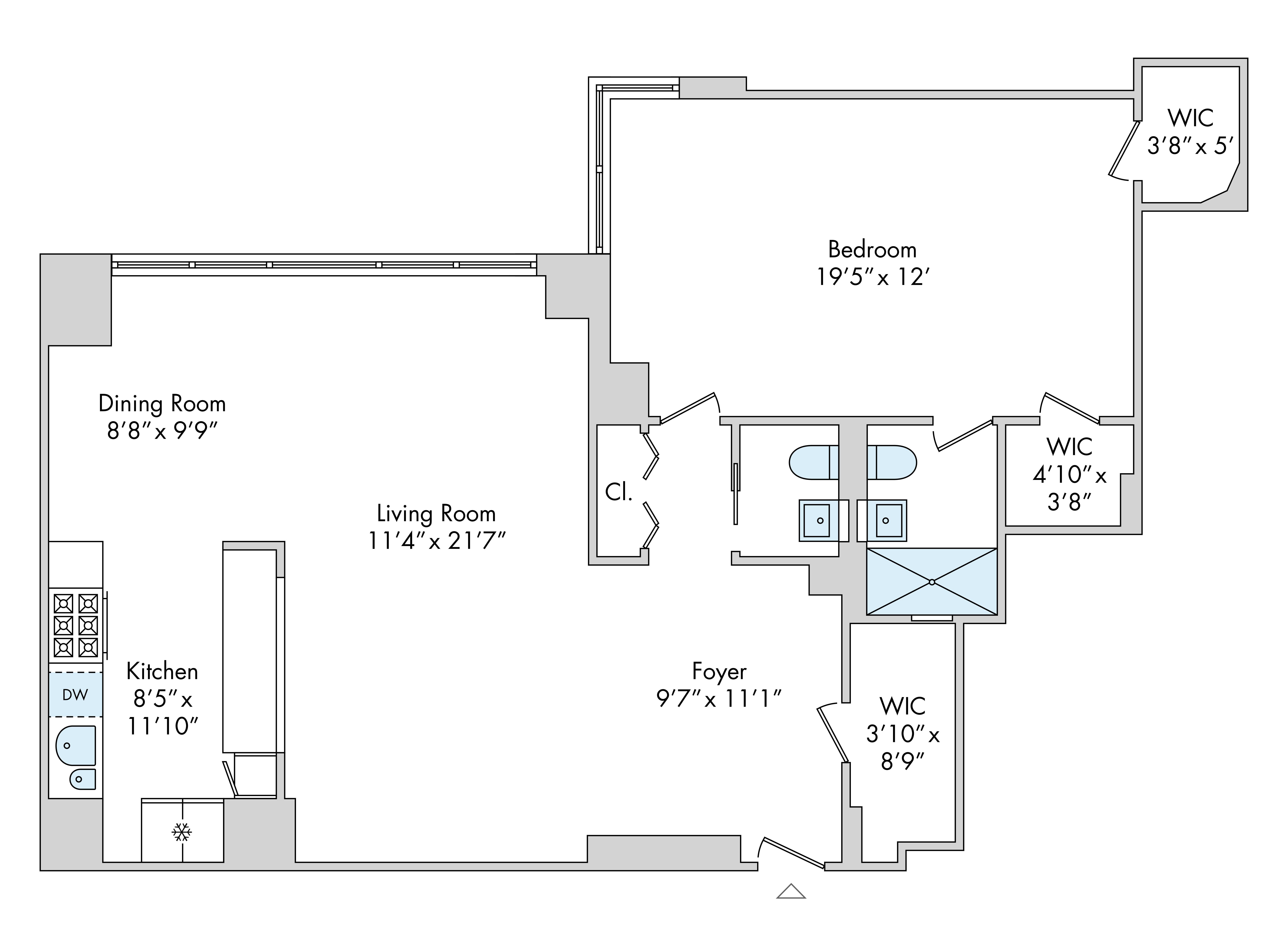
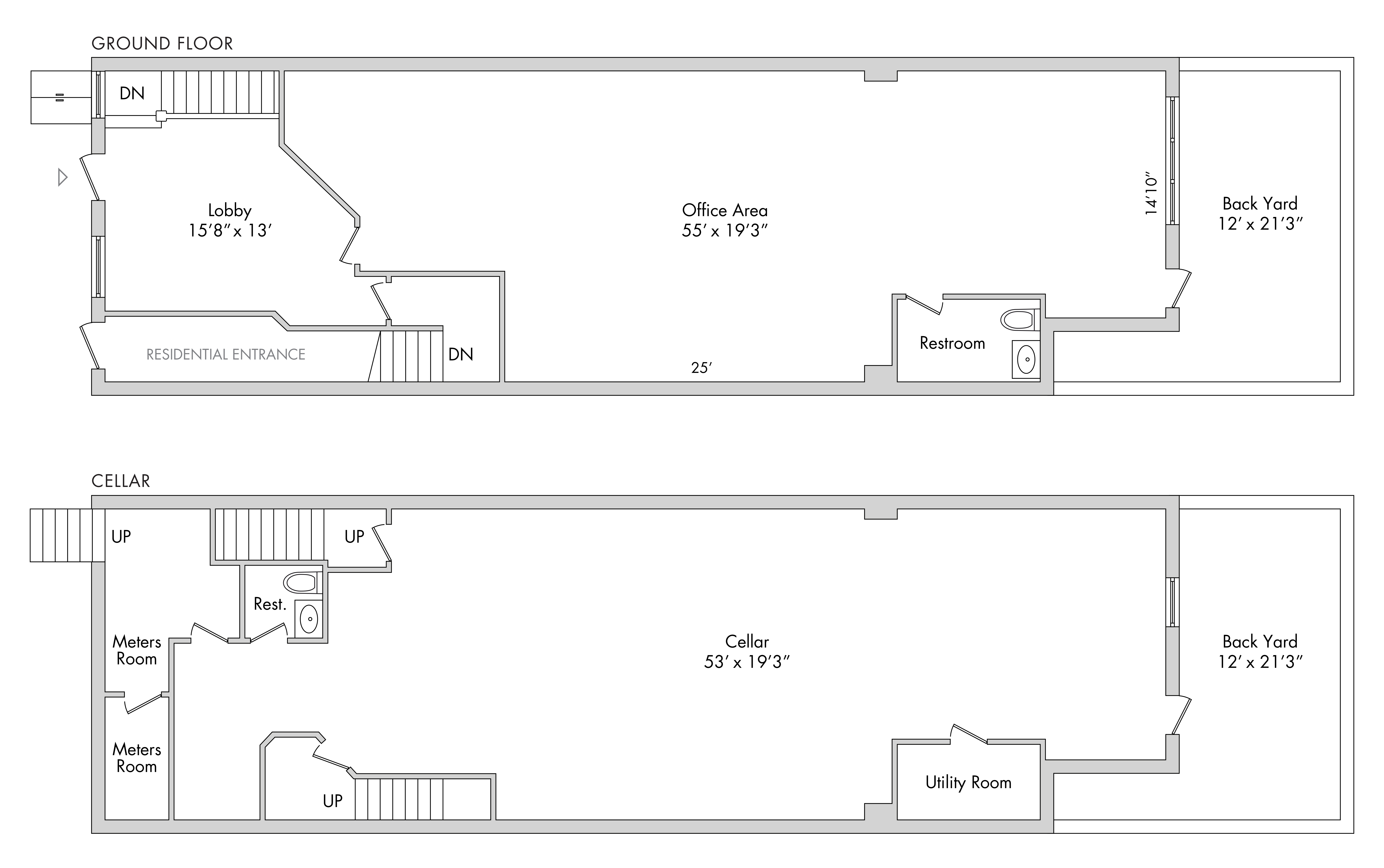
floor plans + layout design >illustration purposes · renovations · space planning<
From an existing floor plan or your provided sketch marked with dimensions